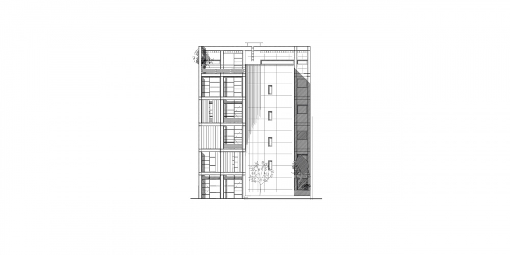
La préoccupation dominante de cette étude a été de tenir compte de l’impact visuel important du bâtiment projeté, en dépit de sa superficie modeste. Le projet doit assurer une transition harmonieuse entre les constructions voisines dont les volumétries radicalement différentes se traduisent aujourd’hui par la présence d'importants pignons. La structure métallique a été précisément retenue pour ce projet en raison de l’identité qu’elle confère aux 3 faces, vues du bâtiment, sans pour autant donner un caractère de façade au pignon. Elle offre en outre un vocabulaire contemporain qui permet de respecter la syntaxe du tissu existant : le léger retrait du 5ème puis celui, volontairement important, du 6ème reprennent l’écriture classique “ attique-comble “ présente dans la plupart des immeubles de cette rue, en se décalant toutefois d’un niveau vers le bas. Une double structure décalée accroche des petits balcons qui peuvent être occultés par des persiennes en aluminium.. Projet réalisé en tant que collaborateur de François Lerault, Architecte DPLG.
Throughout this project the main concern has been to bear in mind the significant visual impact of the future building, despite its relatively small size, on its surrounding landscape. The construction is expected to provide a harmonious transition between the adjoining buildings, radically different in volumes - which today means that a number of gables have become conspicuous. It was decided to choose a metallic structure precisely to give the three sides of the building a unique identity, where gables would remain distinct from the front of the edifice. The metallic structure provides a shared and contemporary lexicon within the surrounding urban language : the 5th floor is slightly drawn in, the 6th much more so, in a wilful attempt to re-create the classic Parisian 'attic-loft' layout to be found in most buildings of the street - albeit one less floor level. Small balconies with aluminium slatted shutters can be seen hanging off a double structure. This project was designed in collaboration with François Lerault, licensed architect.
01.10.2005 PARIS | ARCHITECTURE | PRIVATE | LEMERCIER STREET
La préoccupation dominante de cette étude a été de tenir compte de l’impact visuel important du bâtiment projeté, en dépit de sa superficie modeste. Le projet doit assurer une transition harmonieuse entre les constructions voisines dont les volumétries radicalement différentes se traduisent aujourd’hui par la présence d'importants pignons. La structure métallique a été précisément retenue pour ce projet en raison de l’identité qu’elle confère aux 3 faces, vues du bâtiment, sans pour autant donner un caractère de façade au pignon. Elle offre en outre un vocabulaire contemporain qui permet de respecter la syntaxe du tissu existant : le léger retrait du 5ème puis celui, volontairement important, du 6ème reprennent l’écriture classique “ attique-comble “ présente dans la plupart des immeubles de cette rue, en se décalant toutefois d’un niveau vers le bas. Une double structure décalée accroche des petits balcons qui peuvent être occultés par des persiennes en aluminium.. Projet réalisé en tant que collaborateur de François Lerault, Architecte DPLG.
Architecture et Architecture d'intérieure
Throughout this project the main concern has been to bear in mind the significant visual impact of the future building, despite its relatively small size, on its surrounding landscape. The construction is expected to provide a harmonious transition between the adjoining buildings, radically different in volumes - which today means that a number of gables have become conspicuous. It was decided to choose a metallic structure precisely to give the three sides of the building a unique identity, where gables would remain distinct from the front of the edifice. The metallic structure provides a shared and contemporary lexicon within the surrounding urban language : the 5th floor is slightly drawn in, the 6th much more so, in a wilful attempt to re-create the classic Parisian 'attic-loft' layout to be found in most buildings of the street - albeit one less floor level. Small balconies with aluminium slatted shutters can be seen hanging off a double structure. This project was designed in collaboration with François Lerault, licensed architect.